Retrofit no Edifício Castelo Branco

São Paulo, 2017

+ INFO
|<     <

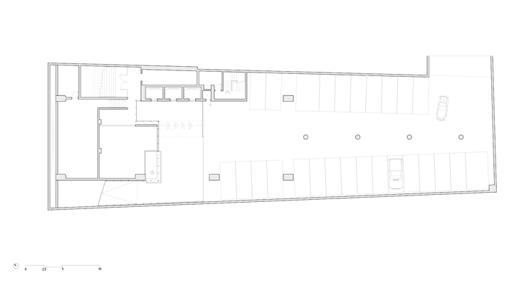
Planta subsolo

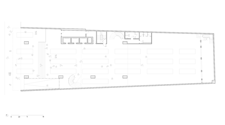
Planta térrea

Planta pavimento tipo

Corte

Modelo físico

Modelo físico

Modelo físico

Memorial

De presença marcante na paisagem do largo da Concórdia o edifício Castelo Branco é um sobrevivente. A exemplo de inúmeros edifícios localizados na região central de São Paulo, é mais um representante da boa arquitetura moderna da capital que se encontra em desuso.

Desde a Privatização da Datamec, em 1999, o edifício passou anos desocupado em processo de deterioração. Esse processo se arrastou até que seu proprietário, a Caixa Econômica Federal, decidiu desfazer-se do imóvel. O novo proprietário, um empresário e comerciante da região, imediatamente colocou na agenda o projeto de recuperação do edifício.

Localizado em um dos principais polos de comercio de rua da cidade, voltado para o setor de roupas, o edifício tem em seu térreo um grande potencial como posto para o comércio varejista, em contrapartida, os pavimentos superiores tendem a esvaziar-se. Assim, um dos principais desafios do projeto consistia em conferir alguma atratividade para os andares superiores, o que envolvia um novo acesso mais convidativo e fluido. Pela mesma razão o projeto devia possibilitar que as intervenções não interrompessem a frenética atividade comercial do térreo.

O projeto busca assim conciliar duas demandas: criar um novo acesso para os inquilinos das lajes de escritório e valorizar o acesso direto ao espaço de varejo localizado no térreo. Isso foi alcançado, aproveitando uma antiga rampa em desuso, para a instalação da nova entrada que, além de ser mais direta, busca captar a atenção do pedestre para o interior do prédio. A nova entrada foi associada à uma nova marquise, instalada ao longo de toda a face do edifício, de tal sorte que o conjunto adquiriu uma unidade, antes inexistente no nível do térreo.

Esses novos elementos foram projetados de tal sorte que se destacam nitidamente da construção original do edifício. Foram construídos a partir de elementos industrializados leves, como tubos de aço, perfis de madeira e telha ondulada de policarbonato.

Nos conjuntos de escritórios intervenções mínimas buscaram recuperar os acabamentos existentes dentro dos conjuntos. Foi mantido o piso de granilite original nas circulações, os caixilhos de ferro foram reformados e os brises de alumínio foram recuperados. Na cobertura foi proposta a instalação de um pavilhão que abrigará um espaço para eventos e um restaurante. Este equipamento permite o acesso público à uma vista panorâmica e cria um espaço de contemplação no alto do bairro do Brás.

Ficha Técnica

Projeto

Retrofit Edifício Castelo Branco

Local São

Paulo-SP

Ano do projeto

2016

Área do projeto

5000m²

Equipe

Vinicius Andrade, Marcelo Morettin

Colaboradores

GOAA Arquitetos, Joana Mitre, Marina Novaes, Marina Pereira

Projeto Original

Jorge Wilheim

Fotografias

Pedro Vanucci