Biblioteca Padre Charbonneau

São Paulo, 2017 - 2020

+ INFO
|<     <

Diagrama conceitual

Corte perspectivado

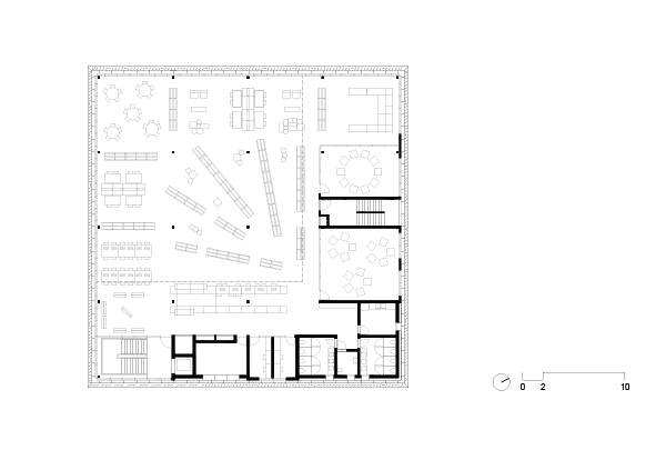
Térreo

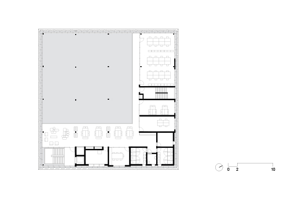
Primeiro pavimento

Segundo pavimento

Corte longitudinal

Corte transversal

Memorial

O concurso para o projeto da nova biblioteca do Colégio Santa Cruz, uma escola de grande relevância para a cidade de São Paulo, surgiu ao longo do processo de modernização e reestruturação do seu campus, cujo objetivo era rever e discutir a relação dos espaços arquitetônicos com as novas práticas pedagógicas. A biblioteca original, implantada no centro do colégio, não correspondia mais às demandas atuais da comunidade, por conta de suas limitações espaciais internas e a pouca integração com a generosa área livre ao redor. 

As instalações do colégio, que abrigam alunos da educação infantil até o ensino médio, estão distribuídas por um vasto campus, amplamente arborizado, em edificações de baixo gabarito, com no máximo dez metros de altura. Há um eixo central, ligando as duas principais ruas de acesso, que organiza o conjunto. No centro deste eixo, junto à praça que congrega os seus principais edifícios, está a biblioteca.

Nosso projeto mantém a posição do novo edifício no campus, mas transforma totalmente sua relação com o entorno. Optamos por suspender o volume principal da biblioteca, criando uma arena central e amplas varandas integradas à praça e aos jardins do colégio. O gesto é claro: a biblioteca, hoje, deve funcionar como ponto de encontro e reunião da comunidade escolar, verdadeiro centro de convergência, tanto do ponto de vista físico-funcional, quanto do ponto de vista simbólico.

Como consequência direta desta primeira decisão, alojamos as atividades mais reservadas da biblioteca neste volume generoso e elevado do solo. O volume superior se apresenta como um espaço livre, de pé direito duplo, amplo e flexível, apto a enfrentar a mutabilidade dos processos didáticos – uma característica especialmente importante em tempos de grandes transformações no modo de organizar e difundir informações.

A envoltória do volume suspenso é composta por duas camadas. A interna, formada predominantemente por painéis de vidro, reforça a integração desejada com os jardins do colégio e garante luz natural abundante para o seu interior. A camada externa, composta por lâminas de alumínio perfuradas e tensionadas, funciona como mediadora, filtrando a luz e modulando a relação dos espaços internos com os externos.

O núcleo de circulação e serviços tornou-se mais completo: foram previstas áreas técnicas, banheiros mais generosos e sala para equipamento de ar-condicionado de fácil acesso para manutenção em todos os andares.  

O sistema construtivo é composto por um número reduzido de elementos industrializados. Sua estrutura parte de um grid simples, sem grandes vãos, o que permite, a um só tempo, que sua volumetria se mostre leve e que sua construção seja rápida e econômica. A superestrutura é mista, com perfis de aço e lajes-painéis de concreto pré-fabricadas; fechamentos com caixilhos de alumínio e vidro; divisórias internas de dry-wall e vidro; e acabamentos com componentes também industrializados.

Ficha Técnica

Projeto

Biblioteca Santa Cruz

Local

São Paulo – SP

Ano de projeto

2017

Ano de construção

2018 – 2020

Área construída

1,785.97 m2

Autores Andrade Morettin Arquitetos Associados

Vinicius Andrade, Marcelo Morettin, Marcelo Maia Rosa, Renata Andrulis

Coordenadores

Izabel Sigaud, Eduardo Miller

Equipe

Raphael Souza, Fernanda Mangini, Murilo Zidan, Daniel Zahoul, Fernanda Carlovich, Guilherme Torres

Estagiários

Clara Troia, Julia Daher, Simone Shimada, Victoria de Almeida Leite, Arthur L. Falleiros

Estrutura metálica

Mectal

Fundações

Ycon Engenharia

Instalações

Projetar

Impermeabilização

Proiso Projeto e Consultoria

Luminotécnica

Lux Projetos

Climatização

GreenWatt

Consultoria para caixilhos

Crescêncio Petrucci Consultoria e Engenharia

Consultoria de acústica

Modal Acústica

Paisagismo

Marcelo Faisal Paisagismo

Comunicação Visual

Renata Morettin

Acessibilidade

Estúdio+1

Fotos

André Scarpa