Centro de Simulação e Doenças Negligenciadas – FMUSP
São Paulo - SP, 2012
Implantação
Segundo subsolo
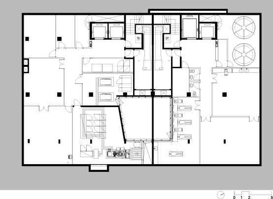
Primeiro subsolo
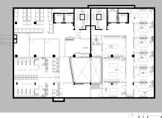
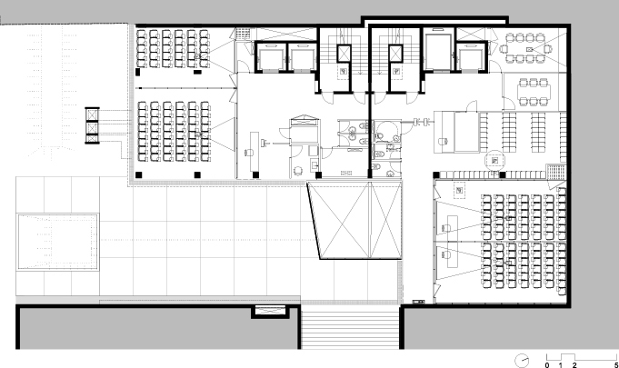
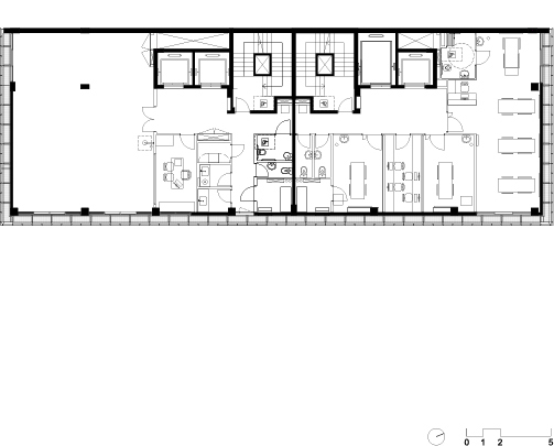
Térreo
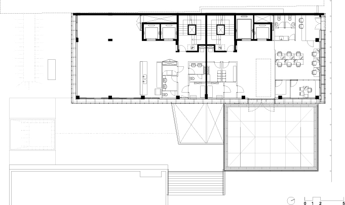
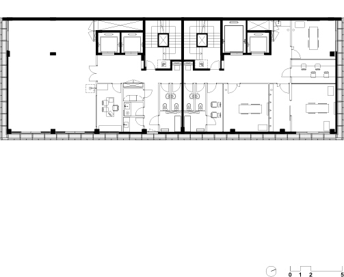
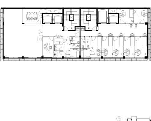
Primeiro pavimento
Segundo pavimento
Terceiro pavimento
Quarto pavimento
Quinto pavimento
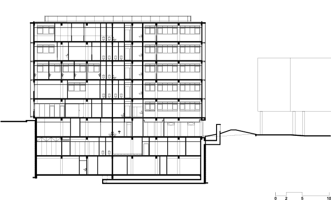
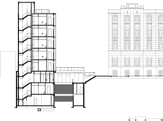
Corte longitudinal
Corte transversal
Elevação leste
Elevação norte
Elevação sul
Memorial
O edifício do Centro de Simulação e Doenças Negligenciadas segue as recomendações do Plano Diretor da Faculdade de Medicina da USP, é o desenvolvimento fiel de uma das ampliações previstas pela terceira fase do Plano, sua concepção teve o objetivo de configurar um conjunto arquitetônico coerente, observa rigorosamente as diretrizes técnicas e plásticas contidas no Plano diretor e respeita o gabarito máximo estipulado pelo edifício sede. O edifício é composto por um andar térreo, cinco pavimentos tipos e dois subsolos técnicos.
O edifício deverá abrigar dois programas distintos e independentes:
1 – Laboratórios de pesquisa para o Instituto de doenças tropicais negligenciadas.
2 – Atividades acadêmicas voltadas para Simulação de procedimentos médicos.
Os dois programas não possuem comunicação entre si, cada um possui seu acesso independente, mas é prevista uma possível conexão entre as duas alas no futuro. A estrutura do edifício é perimetral, apresenta divisórias internas em gesso ou painéis deslizantes a fim de permitir maior flexibilidade dos ambientes e absorver futuras alterações de programa ou layout.
Os materiais empregados seguem o repertório de todas as intervenções já realizadas no campus. O edifício adota uma linguagem francamente contemporânea, mas que ao mesmo tempo, se harmoniza com a imagem existente sem buscar, absolutamente, um mimetismo em relação ao edifício tombado. Principais materiais são: concreto aparente, estrutura e painéis metálicos pintados, caixilharia de vidro temperado.
A fachada é composta por uma segunda pele que uniformiza o volume, permite a proteção contra a incidência solar excessiva, garante ventilação permanente e, principalmente, ameniza e neutraliza a volumetria do edifício pois oculta o grande número de equipamentos de tomada de ar ou exaustão que precisam ser instalados nas fachadas do edifício, conforme as necessidade dos laboratórios. Esta medida ainda antecipa as possíveis transformações e interferências técnicas pelas quais a fachada deverá passar, garantindo sempre a serenidade do edifício na paisagem do Campus.
Ficha Técnica
Projeto
Centro de Simulação e Doenças Negligenciadas – FMUSP
Local
São Paulo – SP
Área do terreno
710,00m²
Área construída
3884,31m²
Ano de projeto
2012
Equipe
Andrade Morettin Arquitetos
Estrutura
STEK Engenharia
Elétrica, hidráulica e ar condicionado
GRAU Engenharia de Instalações
Caixilharia
ARQMATE Esquadrias
Ambiental
DIAS AMBIENTAL Engenharia, Consultoria e Planejamento
Fundações
APOIO Assessoria e Projeto de Fundações