Instituto de Pesquisas Santa Casa

São Paulo - SP , 2009 - 2012

+ INFO
|<     <

Programa

Tratamento acústico

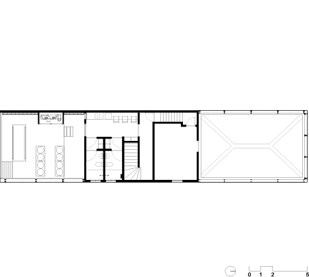
Térreo

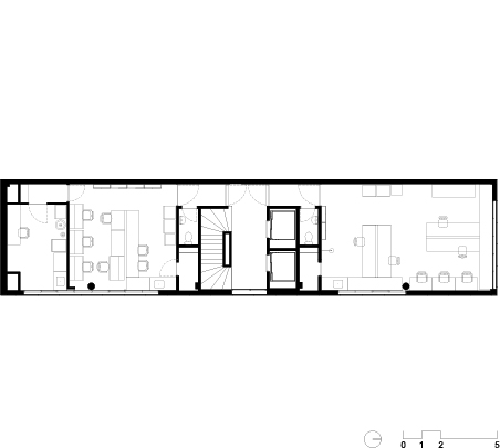
Primeiro pavimento

Segundo pavimento

Terceiro pavimento

Quarto pavimento

Quinto pavimento

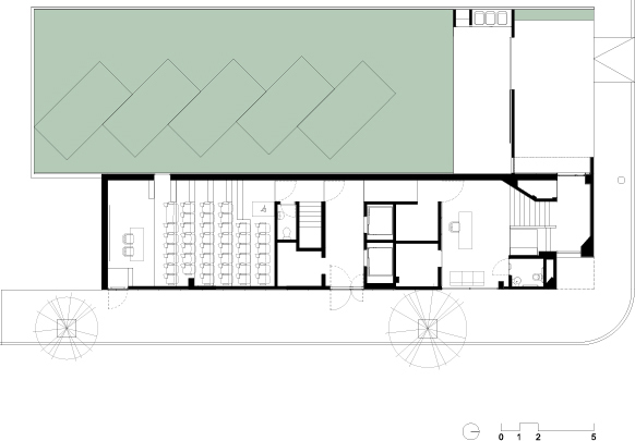
Cobertura

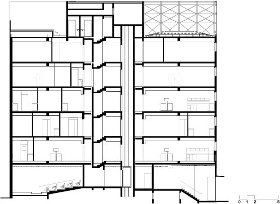
Corte longitudinal

Corte transversal

Elevação leste

Elevação norte

Memorial

O projeto do Instituto de Pesquisas Santa Casa representou um grande desafio para o nosso escritório, na medida em que precisávamos acomodar o programa de um laboratório de alta complexidade em um prédio existente de seis andares na frente do Minhocão.
Para resolver este problema, distribuímos as salas de laboratório nos três primeiros pavimentos do prédio, de tal forma que o pavimento do meio pudesse funcionar como uma espécie de andar técnico, congregando as salas de apoio do laboratório (de uso comum) e as salas de máquinas. Com esta solução, viabilizamos o encaminhamento de todas as instalações técnicas, que de outra maneira não seria possível, dado o pé-direito insuficiente para a passagem horizontal dos dutos.
Completando a distribuição do programa, no térreo há a recepção e um pequeno auditório; nos dois últimos andares ficam as atividades administrativas do Instituto; na cobertura foi criada uma plataforma técnica em estrutura metálica para acomodar as centrais de utilidades do prédio, composta por gerador, condensadoras de ar-condicionado, caixas d’água, etc.
O volume do prédio foi totalmente reformulado, para atender aos requisitos de conforto ambiental e também com o propósito de criar uma imagem forte para o Instituto. A solução encontrada foi reduzir a superfície envidraçada (para atender ás necessidades dos laboratórios) e “envelopar” todo o edifício com uma segunda pele de chapas metálicas perfuradas.
Os caixilhos utilizados, dotados de vidros laminados de 12mm, foram dimensionados por um consultor de acústica para reduzir o alto ruído proveniente do Minhocão; a pele metálica, de chapas galvanizadas com pintura eletrostática, foi fixada no prédio através de um sistema de longarinas metálicas, que asseguram a planicidade desejada e o correto afastamento da fachada original do prédio. O resultado geral é um volume íntegro, bem articulado com o entorno, que se coloca na paisagem urbana com personalidade, mas sem exageros.

Ficha Técnica

Projeto

Instituto de Pesquisas Santa Casa

Local

São Paulo – SP

Área do terreno

430,00m²

Área construída

1012,50m²

Ano de projeto

2009

Ano de conclusão

2012

Equipe

Andrade Morettin Arquitetos

Acústica

Modal Acústica e Engenharia

Elétrica, hidráulica e ar condicionado

GRAU Engenharia de Instalações

Construção

União Construtora

Fotos

Nelson Kon

Publicações

  • Projeto Design 397, São Paulo, Brasil, Arco Editorial, 2013