Conjunto Habitacional Jardim Lidiane

São Paulo - SP, 2011

+ INFO
|<     <

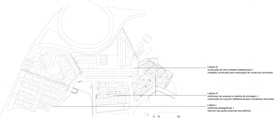
Favela Lidiane

Rede de drenagem existente + áreas de alagamento

Rede viária existente

Circuito viário proposto

Situação existente

Implantação setorizada

Lidiane IV

Situação existente | depósito de escola de samba

Cheios e vazios

Uso do solo

Altura das edificações

Mobilidade

Resíduos sólidos

Acessibilidade

Estado das edificações | pontos críticos

Habitabilidade | pontos críticos

Alagamentos

Diagnóstico | sobreposição dos pontos críticos

Estratégia

Implantação proposta

Novos fluxos

Corte da situação proposta

Lidiane III

Térreo

Pavimento tipo

Cortes transversais

Elevação oeste

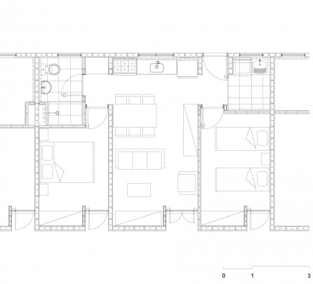
Unidade tipo

Memorial

Localizado junto à alça de acesso da ponte Júlio de Mesquita Neto, zona norte de São Paulo, o conjunto habitacional do Jd. Lidiane encontra-se em meio a uma zona industrial, de difícil acesso e frequentes alagamentos.

O bairro, hoje em transformação, acomoda além das comunidades da favela, uma nova classe média e carece de espaços públicos, áreas de lazer e equipamentos públicos.

A favela é estruturada a partir de uma única via de acesso, caracterizado por seu vital comércio, frequentado inclusive pelos moradores do bairro.

Levando-se tais aspectos urbanísticos em conta e ainda considerando a rica dinâmica social da favela na qual o conjunto se insere, o projeto assume como ponto capital a criação de espaços públicos de qualidade, que extrapolam os limites do edifício e geram em seu entorno melhorias para toda a comunidade. Desta forma optou-se por criar uma grande praça central no miolo da gleba destinada ao empreendimento, equipada com quadra , bancos e equipamentos de ginástica, que organiza os edifícios em seu entorno e amplia as opções de lazer da região. No seu entorno, conformando uma espécie de loggia para a praça, foram posicionadas áreas comerciais, equipamentos públicos e de uso comunitário: um telecentro, um ponto de leitura e um salão para reuniões da associação de moradores. Em complemento a praça, no alinhamento da rua Sampaio Correia, foram previstas áreas comerciais no térreo e uma marquise desenhada para abrigar os pedestres que passarem por esta calçada.

Do ponto de vista da circulação viária e do acesso ao transporte públicos propôs-se a abertura de uma nova rua que se conecta à uma rua já existente, completando assim o circuito viário, oferecendo mais uma alternativa de acesso à toda favela, conectando-a ao bairro e permitindo a circulação de ônibus em seu interior.

As intervenções na favela que deverá permanecer orientam-se no principio de integração e de acessibilidade, buscando melhorar as condições de habitabilidade e reforçando a estratégia de inclusão desta comunidade à chamada cidade formal

A busca pelo convívio em comunidade guiou a  proposta até mesmo no desenhos dos edifícios em si. Toda a circulação se faz por escadas abertas e passarelas elevadas que, afastadas das paredes do edifício, garantem a privacidade de cada unidade e ao mesmo tempo permite o contato visual entre todos os andares. Por fim, nos cruzamentos entre escadas e passarelas se conformam praças de acolhimento cobertas, que com pé-direito de quatro pavimentos de altura conectam os edifícios vizinhos.

Ficha Técnica

Projeto

Conjunto Habitacional Jardim Lidiane

Local

São Paulo – SP

Ano de projeto

2011

Área do terreno

11.146 m2

Área construída

17.944 m2

Equipe

Andrade Morettin Arquitetos

Vinicius Andrade, Marcelo Morettin

Carlos Eduardo Miller (coord.), Beatriz Moretti, Fabio Ucella, Flora Fujii, Lauro Rocha e Valeria Mónigo

Publicações

  • Monolito 7 | Habitação Social em São Paulo, São Paulo, Brasil, Editora Monolito, 2012