Concurso Internacional para nova Sede da CAF

Caracas - Venezuela, 2008

Projeto Premiado

+ INFO
|<     <

Diagrama de implantação

Diagrama de mobilidade

Nova praça [alargada]

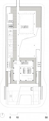
Implantação

Segundo subsolo

Primeiro subsolo

Acesso

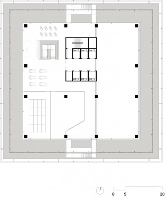
Térreo

Pavimento | academia

Pavimento | piscina

Pavimento | escritórios

Pavimento | escritórios

Pavimento | diretores

Corte transversal

Corte longitudinal

Memorial

Criar um projeto para a nova sede da CAF é uma ocasião importante para pensar e ajudar a construir um imaginário de cidade, de uma Caracas para o futuro. Acreditamos que o principal desafio é desenhar um modelo produtivo e sustentável para a ocupação do solo urbano em que CAF e Cidade se beneficiam mutuamente. Este princípio norteou nossa proposta.

 

Implantação

O prolongamento da Praça Altamira será o principal gesto da CAF ao instalar-se no local, propondo uma nova dimensão a este espaço urbano que é certamente um dos lugares emblemáticos de Caracas. A idéia-chave do projeto é reforçar a importância deste espaço público como um lugar de inclusão, aonde convivem os transeuntes, os terminais do Metrobus, o Metrô, atividades culturais e a sede da CAF, ajudando a criar um ambiente urbano integrador. A volumetria proposta observa o modelo morfológico que caracteriza o entorno, no entanto tem a força necessária para apresentar-se como um novo landmark local.

 

A Nova Praça

Enquanto a Praça Altamira (Francia Norte), com o seu desenho clássico, se apresenta como um lugar para a contemplação, a nova praça, mais densamente arborizada, se oferece como um lugar para descansar sob as suas copas. Com isto, tentamos dotar esse eixo de espaços verdes com ambientes de características diferenciadas. Esta vegetação, disposta ao longo das divisas leste e oeste, ajuda a criar uma certa proteção do movimento das Avenidas Sur e Del Avila para os passeantes na praça.

 

O conjunto CAF

Esta mesma praça, agora alongada, é dividida em dois níveis abaixo do solo que são acessíveis através de escadas rolantes localizadas em um pátio descoberto. O primeiro nível inferior é uma praça aberta e coberta que funciona como um grande mediador: Ele faz a conexão da praça pública, localizada ao nível da rua, com os espaços culturais, espaços semi-privados e a recepção da porção privada do programa. Neste nível, há um eixo de circulação pública que atravessa todo o conjunto, a partir da estação de metrô até a rua José Félix Sosa. O programa privado da CAF é organizado dentro de um grande volume: É uma edificação única, definida por um grande envoltório que cria um micro-clima onde estão empilhados planos e jardins. Desta maneira são criados espaços diversificados para o trabalho, para o encontro e para contemplar a vista sobre a cidade ou sobre o Parque Nacional El Ávila, uma referência permanente do local. A transição entre os espaços coletivos e privados é regulada / controlada pelo hall central e a recepção, ambos localizados no nível da praça coberta.

 

O edifício

O edifício foi concebido como uma infra-estrutura: um empilhamento de grandes superfícies / planos equipados que funcionam como suporte flexível para as atividades previstas e como facilitador de outras atividades possíveis, considerando a mutabilidade da dinâmica do trabalho. Em sua genética, portanto, traz a capacidade de se adaptar para acompanhar o desenvolvimento das atividades e as mudanças na cidade. A pele exterior funciona como um regulador climático que permite a entrada de luz de forma moderada e filtrada, e que ao mesmo tempo dá ao edifício uma aparência leve, suavizando seu impacto visual no contexto urbano. O esquema estático, com bloco central que lhe confere estabilidade, é bastante simples e flexível para que possam ser adotados sistemas construtivos leves e de fácil execução.

Ficha Técnica

Projeto

Concurso Internacional para nova Sede do CAF

Local

Caracas – Venezuela

Ano de concurso

2008

Equipe

Andrade Morettin Arquitetos

Florian Schmidt-Hidding, Marcio Tanaka, Marina Mermelstein, Natasha Pirondi e Sonia Gouveia

Premiação

Concurso Internacional para nova Sede da CAF - 2º Prêmio, 2008

Publicações

  • AV Proyectos 29, Madrid, Espanha, Arquitectura Viva, 2008