Concurso Nacional para o Plano Diretor de Restauração de Faculdade de Medicina da USP

São Paulo - SP, 1998 - 2010

Projeto Premiado

+ INFO
|<     <

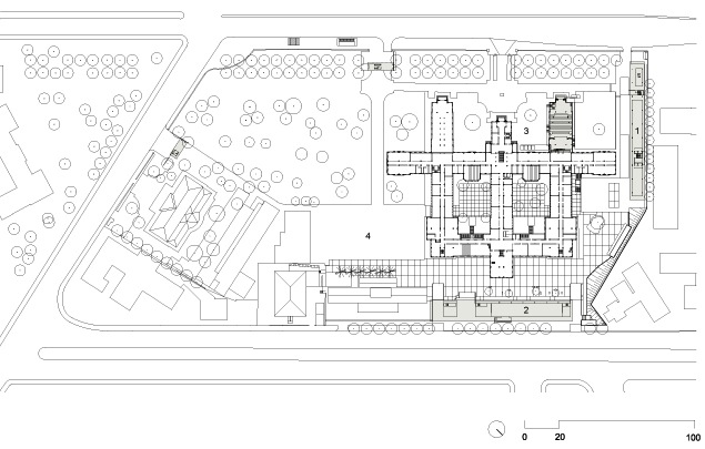
Implantação

Térreo | 1.Pavilhão técnico 2.Pavilhão de serviços 3.Edifício histórico 4.Praça

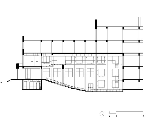
Corte longitudinal [auditório]

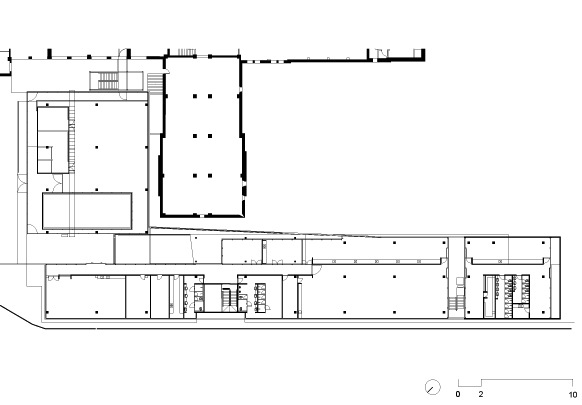
Pavilhão técnico | Térreo

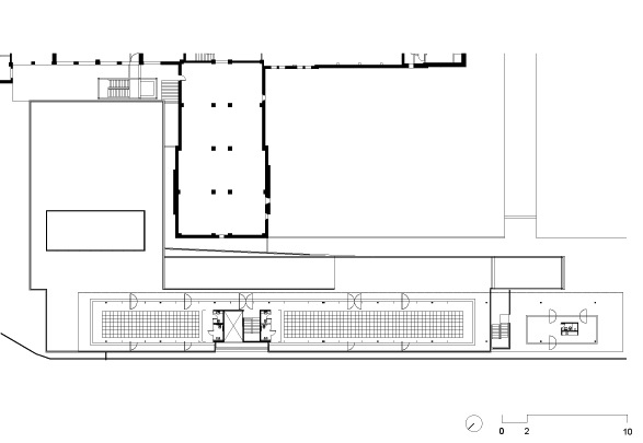
Pavilhão técnico | Primeiro pavimento

Pavilhão técnico | Corte transversal

Pavilhão técnico | Corte longitudinal

Pavilhão de serviços | Térreo

Pavilhão de serviços | Corte transversal

Memorial

A Faculdade de Medicina da Universidade de São Paulo é um marco da cidade. Dois de seus edifícios, projetados pelo arquiteto Ramos de Azevedo e construídos na década de 20, foram tombados em 1981 pelo Conselho de Defesa do Patrimônio Histórico, Artístico, Arqueológico e Turístico do Estado de São Paulo.

O Plano Diretor apresenta diretrizes conceituais, formais e operacionais para as intervenções a serem realizadas a curto e longo prazo e foi organizado em três grandes grupos (fases).

 

Fase 1 – Restauro e Renovação Técnica dos Edifícios Tombados

O conceito de restauro neste caso implica não só a recuperação e reconstituição de muitos dos seus aspectos arquitetônicos originais, mas também uma nova postura de ocupação e funcionamento.

A renovação de todas as instalações do prédio (ar condicionado, fluidos, elétrica, informática e combate a incêndio) foi alcançada com a criação de um novo sistema: a construção de edifício denominado Área Técnica que abriga a nova central de utilidades; a abertura de shafts internos para o percurso vertical das tubulações e a inserção de um forro técnico nos corredores de todos os pavimentos para o percurso horizontal.

 

Fase 2 – Redefinição da área livre

A partir da criação de uma rede de espaços e passeios públicos, definimos a estratégia da intervenção que deve reordenar o campus.

Portais de entrada foram criados, marcando o novo eixo de acesso e ao complexo. O Edifício de Serviços ao mesmo tempo em que demarca o acesso pela avenida Dr. Enéas de Aguiar abriga uma série de programas que se abrem diretamente para o passeio público.

No embasamento do Edifício Sede, os dois pátios internos foram interligados por um porticado, criando uma área de estar integrada com os espaços ocupados pelo grêmio dos estudantes, lojas e restaurante. Estes pátios serão comunicados com a futura praça central do Campus (objeto da 3afase).

 

Fase 3 – Ampliações e praça central

A nova praça central que concentra e articula todos os fluxos principais do Campus, abriga sob si, no subsolo, a nova biblioteca central e dois pavimentos de estacionamento.

O novo edifício de Laboratórios foi posicionado de forma a consolidar o papel articulador que desempenha a nova praça central, desenvolve-se ao longo da avenida Dr. Arnaldo e “pluga-se” ao Edifício Sede, gerando um elemento construído único, capaz de impor à quadra uma nova ordem espacial.

Ficha Técnica

Projeto

Concurso Nacional para o Plano Diretor de Restauração de Faculdade de Medicina da USP

Local

São Paulo – RJ

Ano de concurso

1998

Ano de conclusão

2010

Área construída

48.705 m2

Equipe

Andrade Morettin Arquitetos

Baldomero Navarro, Marcia Terazaki, Marina Mermelstein, Renata Andrulis e Suzana Barbosa

Colaboradores

Lua Nitsche, José Alves

Premiação

Concurso Nacional para o Plano Diretor de Restauração de Faculdade de Medicina da USP - 1º Prêmio, 1998

Publicações

  • Monolito 2 | Andrade Morettin Arquitetos, São Paulo, Brasil, Editora Monolito, 2011