Concurso Nacional para o Centro de Informações do COMPERJ – Petrobrás

Itaboraí - RJ, 2008

Projeto Premiado

+ INFO
|<     <

Montagem

Componentes

Implantação

Térreo

Mezanino

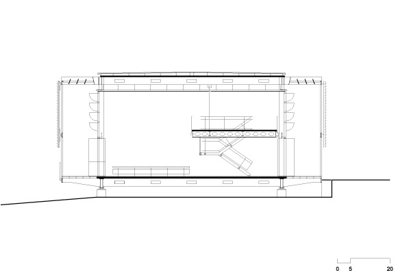
Corte transversal

1.Ruínas convento 2.Largo 3.Campanário 4.Comperj 5.Praça local

Gabarito de implantação do conjunto

Adequação ao clima

Memorial

O edifício sede do Centro de Informações do Comperj em Itaboraí tem um papel fundamental dentro do futuro complexo petroquímico que a Petrobras irá implementar na região. O CI , de acordo com o Termo de Referência, será a porta de entrada do empreendimento. Por conta disto, o novo edifício deve representar muito claramente os valores que a empresa defende, dentre os quais estão incluídos a modernidade e as responsabilidades social e ambiental.

A estratégia adotada para que o edifício atinja este objetivo se apóia em três parâmetros, ou conceitos fundamentais. O primeiro diz respeito à maneira como se dá a ocupação do território. A implantação do edifício (especialmente sua relação com o Convento de São Boaventura), o projeto das praças e jardins e a escolha dos materiais  foram pensados não só para atender às necessidades do CI como também para revelar os traços mais característicos da paisagem do lugar, localizado na bacia leste da Baía de Guanabara. O segundo parâmetro consiste em pensar o edifício como objeto autônomo inserido na paisagem, que se integra ao entorno sem alterar significativamente o território. Por isso a idéia de pavilhão que “pousa”delicadamente no terreno. A volumetria é concisa, sintética, mas também poderosa por causa da escala e da imagem do edifício. Por fim, o terceiro conceito que norteou nossas decisões de projeto envolve a adoção de um sistema construtivo claro e racional e de medidas que garantissem o bom desempenho bioclimático e a sustentabilidade do edifício.  

 

A ocupação do território

A implantação do edifício organiza e dá um novo significado ao território no qual está inserido. Localizado na borda do terreno e na mesma cota de implantação das ruínas do Convento, o edifício altera a percepção do lugar, na medida em que configura um  plano que é o resultado da triangulação dos elementos arquitetônicos que se erguem na paisagem. O percurso que vai da entrada do terreno até o novo edifício é feito por uma passarela  ligeiramente elevada,  de onde se observa a praça do museu. A praça, cuja geometria organiza toda a implantação do conjunto, é composta por cascalho e água. A lâmina d’água remete à riqueza da hidrografia do lugar – no caso, representando o primeiro estágio da coleção de águas litorâneas, localizadas nas terras altas. O piso é representativo das rochas que compõe o solo da região – como se as “cascalheiras” aflorassem  e viessem compor a praça. Por se tratar de uma região com uma paisagem bastante heterogênea, optamos por criar áreas densamente arborizadas em pontos estratégicos do terreno, especialmente junto aos acessos e estacionamentos. Para tanto serão escolhidas árvores nativas, que fazem parte da vegetação característica da Floresta Ombrófila.

 

O edifício

A volumetria sintética do pavilhão se ajusta perfeitamente ao perfil natural do  terreno, ao mesmo tempo em que se contrapõe aos elementos da ruína do Convento. A arquitetura é leve e permeável ao olhar. A complexidade vem das diversas “densidades”que a lâmina assume de acordo com a luz que incide sobre sua superfície. O programa se distribui com naturalidade pelos espaços internos. Logo na entrada está o grande salão, que funciona como espaço de encontro e de distribuição para todo o CI e de onde se pode avistar o entorno (especialmente as ruínas do Convento). Ao sul, a ala administrativa. Ao Norte, o museu e biblioteca ocupam os espaços mais amplos, de pé-direito alto, de onde o mezanino oferece uma visão privilegiada. Os espaços mais específicos – espaços de reunião, formados pelo auditório, sala 3D e video conferência – ocupam um volume separado e plugado ao pavilhão, obedecendo às características específicas destes programas. Ao longo de todo o edifício desenvolvem-se varandas sombreadas que funcionam como balcões de observação sobre a paisagem.

 

Sistema construtivo e eco-eficiência

O sistema construtivo adotado – composto basicamente pela estrutura metálica e por componentes industrializados para os sistemas de cobertura,  fechamentos e de divisórias – permite uma execução rápida e precisa, altamente racionalizada. Isto significa mais controle sobre os processos e menos desperdícios. O piso será de assoalho de madeira nas áreas expositivas e de placas de piso elevado nas áreas administrativas e nos espaços de reunião. Os brises horizontais da cobertura serão feitos de lâminas de madeira de reflorestamento autoclavadas (utilizando madeira de crescimento rápido), enquanto que as telas de proteção das fachadas serão executadas em aço inoxidável, em função da durabilidade e da baixa manutenção exigida pelo material.

A orientação do prédio – leste/oeste – determinou a adoção de algumas decisões de projeto para controlar a insolação e para tirar proveito da iluminação e ventilação naturais. As varandas que estão localizadas  nas fachadas leste e oeste criam, como vimos acima, uma zona de proteção para o interior do edifício. A tela e os brises horizontais barram o sol indesejável e a velocidade dos ventos, ao mesmo tempo em que os amplos caixilhos permitem a entrada da luz natural devidamente filtrada. Os caixilhos podem ser abertos, se as atividades assim permitirem, proporcionando a ventilação cruzada dos ambientes (de qualquer maneira, o ganho térmico será bastante reduzido, o que melhoraria consideravelmente o desempenho dos sistemas de refrigeração de ar).

Propomos a adoção de sistemas de reuso de água para irrigação dos jardins e para as bacias sanitárias. Propomos também que seja considerado o uso de painéis fotovoltaicos para prover parte da energia usada no edifício. Estes equipamentos estariam localizados na cobertura do pavilhão, aumentando a eficiência dos sistemas e ajudando a compor a imagem do edifício. As demais centrais de utilidade (central de refrigeração, subestação, gerador, caixa d’água e central de tratamento) foram distribuídas no terreno de acordo com as necessidades específicas de cada grupo.        

Ficha Técnica

Projeto

Concurso Nacional para o Centro de Informações do COMPERJ – Petrobrás

Local

Itaboraí – RJ

Ano de concurso

2008

Área do terreno

3.600 m2

Área construída

39.000 m2

Equipe

Andrade Morettin Arquitetos

Marcio Tanaka, Marina Mermelstein, Natasha Pirondi e Florian Schmidt-Hidding

Premiação

Concurso Nacional para o Centro de Informações do COMPERJ – Petrobrás - 1º Prêmio, 2008

Publicações

  • 10 x 10 / 3 _ 100 architects 10 critics, Londres, Inglaterra, Phaidon Press Limited, 2009
  • Vivercidades 24, Rio de Janeiro, Brasil, ONG ViverCidades, 2008
  • Projeto Design 342, São Paulo, Brasil, Arco Editorial, 2008
  • Monolito 2 | Andrade Morettin Arquitetos, São Paulo, Brasil, Editora Monolito, 2011