Réinventer Paris: Ordener

Paris, 2015

Projeto Premiado

+ INFO
|<     <

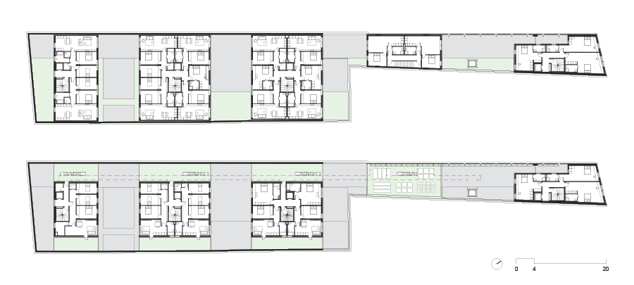
Térreo

Primeiro e segundo andar (acima), terceiro andar (abaixo)

Quarto andar (acima), quinto andar (abaixo)

Cortes longitudinais

Corte transversal

Memorial

O projeto para o lote situado à rua Ordener, no XVIII arrondissement, em Paris, é um estudo realizado no contexto de um concurso internacional, chamado Reinventer Paris, lançado pela prefeitura de Paris em 2015. O concurso convocava arquitetos do mundo todo a apresentar ideias inovadoras para lotes específicos na cidade.

Nosso projeto, inserido em um bairro tipicamente residencial, propõe a implantação de um conjunto inovador apoiado na ideia de um entrelaçamento social, urbano e produtivo. Com o apoio de uma equipe interdisciplinar, dividida entre São Paulo e Paris, elaboramos um programa misto, contemplando moradia, equipamento público, comércio e produção agrícola.

A moradia, com diversas tipologias e modalidades de financiamento, encoraja a associação intergeracional entre moradores, envolvendo as crianças da creche, os idosos, que podem prestar serviços nessa mesma instituição e os estudantes, que podem prestar serviços como cuidadores, tanto aos idosos quanto às crianças.

O sistema de produção agrícola, por outro lado, além da possibilidade de geração de renda para os moradores que se engajarem, oferece um espaço naturalmente agregador: o trabalho ou o ócio nos jardins comunitários é um momento propício para a socialização. A creche terá atividades associadas à horta e o comercio, localizado junto á rua, será o principal ponto de comercialização dos produtos do cultivo local.

Do ponto de vista da inserção urbana o entrelaçamento se dá por meio da abertura do lote, transformando-o em uma rua para pedestres que permitirá a travessia pelo meio da quadra, franqueando acesso direto à creche, a um equipamento de atendimento ao jovem, situado no miolo da quadra, e à escola municipal, hoje murada, que se situa na outra extremidade da passagem.

Ficha Técnica

Projeto

Réinventer Paris: Ordener

Local

Paris – FR

Ano de projeto

2015

Área do terreno

1.791m2

Area construída

3.674m2

Equipe

Andrade Morettin Arquitetos

Felipe Fuchs (coord.), Adriane De Luca, Carlos Eduardo Murgel Miller, Eduardo Saguas Miller, Fernanda Carlovich, Fernanda Mangini, Jaqueline Lessa, Johanna Miklos, Melissa Kawahara, Raphael Souza, Tina Niessner

Readymake

Camille Bianchi e Marie-Ange Jambu

Paisagismo

Robert De Paauw

Incorporadora

Vinci Immobilier

 

Operadores

Agricultura urbana

Topager

Locação social

France Habitation

Crédito imobiliário

Fidexi

Creche

Babilou

 

Consultores

Orçamento

IPH

Engenharia

Frank Boutté

Relação comunitária

Mairie Coirié

Premiação

Concurso Internacional Réinventer Paris - 2º Prêmio, Paris, 2015

Publicações

  • Monolito 32 | Réinventer Paris, São Paulo, Brasil, Editora Monolito, 2016