IMPA – Instituto Nacional de Matemática Pura e Aplicada

Rio de Janeiro, 2015

Projeto Premiado

+ INFO
|<     <

Reconhecimento urbano

Conexões físicas

Morfologia do terreno

Setorização do programa

Construção da matriz espacial

Implantação

Pilotis

Primeiro pavimento

Segundo pavimento

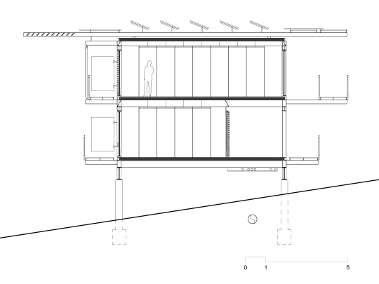
Cortes transversais

Corte ampliado

Memorial

O Impa, Instituto de Matemática Pura e Aplicada, tem como focos a pesquisa em matemática e a formação acadêmica para mestrado, doutorado e pós-doutorado. Atualmente ocupa uma propriedade no Jardim Botânico, Rio de Janeiro, vizinha ao terreno que deverá abrigar as novas atividades. O projeto para a expansão de sua sede tem como objetivo principal a construção de uma área residencial para o complexo.

Os edifícios existentes abrigam salas de aula, gabinetes de pesquisadores, setores administrativos e áreas comuns – como refeitório, auditórios e biblioteca. As novas unidades de habitação, totalizando 126 quartos, estão divididas em diversas tipologias: estúdios e apartamentos de um e dois dormitórios. Além disso, foram previstas também novas instalações para as áreas didáticas, ampliando o número de gabinetes de pesquisadores, criando novos auditórios e áreas de pesquisa.

O principal desafio desse projeto foi encontrar uma maneira de implantar o programa proposto em uma área de topografia complexa, densamente arborizada, causando o mínimo impacto possível na paisagem existente. A proposta se baseia na implantação de pavilhões lineares dispostos ao longo das curvas de nível do terreno. São construções leves, elevadas sobre pilares, que pairam sobre o solo, criando uma rede de espaços cobertos e descobertos com grande conectividade mas com baixo impacto sobre o meio físico. Esses pavilhões são articulados entre si por meio de linhas de acesso perpendiculares que conectam as diferentes cotas de nível do complexo. Estas linhas ligam-se à praça superior que funciona como o ponto focal da vivência no Campus. É a partir dessa praça que se acessa, diretamente, às atividades coletivas do conjunto bem como ao caminho que liga esta unidade à sede original do instituto.

Ficha Técnica

Projeto

Instituto Nacional de Matemática Pura e Aplicada

Local

Rio de Janeiro – RJ

Ano de concurso

2015

Área do terreno

251.824m2

Área construída

19.101 m2

Autores

Vinicius Andrade, Marcelo Morettin, Renata Andrulis, Marcelo Maia Rosa

Equipe de concurso

Carlos Eduardo Miller (coord.), Raphael Souza (coord.), Adriane De Luca, Felipe Fuchs, Fernanda Carlovich, Fernanda Mangini, Jaqueline Lessa, Melissa Kawahara, Raphael Souza, Tina Niessner

Estagiários de concurso

Eduardo Miller, Guilherme Torres, Helena Kozu, Johanna Miklos

Equipe de projeto

Raphael Souza (coord.), Daniel Zahoul, Carlos Eduardo Miller, Adriane De Luca, Felipe Fuchs, Fernanda Carlovich, Fernanda Mangini, Jaqueline Lessa, Melissa Kawahara, Gabriel Sepe, Eduardo Miller, Guilherme Torres, Murilo Zidan

Estagiários de projeto

Ingrid Colares, Clara Troia, Danielle Khoury, Izabel Sigaud, Julia Daher, Simone Shimada, Victoria de Almeida Leite, Arthur Lamberti Falleiros

Ambiental

Oiti Consultoria Ambiental

Licenciamento

Masterplan Engenharia e Consultoria Ambiental

Paisagismo e agronomia

Ricardo Vianna

Estrutura

Ycon Engenharia

Bioclimática e instalações

Greenwatt Consultores de Energia

Geotecnia e drenagem

Moretti Engenharia Consultiva

Acústica

Harmonia / Akkerman, Holtz

Design gráfico

Renata Morettin

Tradução

Helena Nicotero

Maquete

SQ Maquetes

Premiação

Concurso Instituto Nacional de Matemática Pura e Aplicada - 1º Prêmio, 2015
Prêmio Regional LafargeHolcim Latin America - Menção honrosa, 2017
Prêmio IABsp “Edificação Institucional” - 1º Prêmio, 2019