Reforma Prudência

São Paulo - SP, 2001 - 2002

+ INFO
|<     <

Planta

Corte A

Corte B

Perspectiva

Memorial

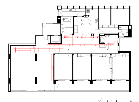
O Edifício Prudência, projetado pelo arquiteto Rino Levi, e construído na segunda metade da década de quarenta em Higienópolis, é considerado referência para boa arquitetura residencial paulistana ainda hoje. A organização do apartamento é bastante clara: um largo corredor de distribuição articula, de um lado, o setor dos dormitórios e de estar que estão abertos para a rua, e, do outro, abrindo-se para o pátio interno, o setor de serviços. Se por um lado a solução do sistema estrutural do edifício permite ao morador flexibilidade na configuração dos espaços tidos como nobres, por outro lado, a organização dos espaços de serviço é intrincada, reflexo de um modo de viver que não existe mais.

A nossa proposta de reforma partiu de duas premissas básicas: – restaurar de acordo com o projeto original todos os elementos que guardavam uma relação mais íntima com os espaços coletivos e de compreensão geral do prédio – tais como hall de entrada, varanda, caixilhos e fachadas. – criar uma intervenção clara e marcante no interior do apartamento que tivesse a capacidade de reordenar os espaços e de propor uma nova articulação dos dois setores aqui identificados – o que serve e aquele que é servido. Dessa maneira pretendíamos manter a integridade das duas arquiteturas: da proposta original de Rino Levi e daquela que lhe sugere um diálogo franco e contemporâneo.

A intervenção consiste na inserção de um grande equipamento no corredor de ligação e que transforma completamente a transição entre os espaços internos. Esta transição, antes rígida e limitadora, passou a ser fluida e cambiante, composta de painéis que se movem e que permitem a integração de todos os espaços. Além disso, este equipamento também é infraestrutura, na medida em que é suporte das instalações técnicas – elétrica, dados, iluminação e hidráulica – e de outros eventos, tais como a biblioteca, a exposição de objetos de arte, o armazenamento de aparelhos e produtos de uso doméstico, etc. O projeto e execução deste equipamento foi cuidadosamente elaborado, exigindo desenhos de produção de todos os seus componentes, que depois foram montados como um jogo de armar dentro do apartamento. As peças são feitas de chapas de aço dobradas e pré-pintadas e de chapas de vidro temperado.

Ficha Técnica

Local
São Paulo – SP
Área construída
450m²
Ano de projeto
2001
Ano de conclusão
2002
Equipe
Andrade Morettin Arquitetos

Vinicius Andrade, Marcelo Morettin

Colaboradores
José Alves, Pedro Nitsche
Fotos
Nelson Kon

Publicações

  • Panorama Emergente Ibero-Americano, Lima, Peru, Bienal Iberoamericana de Arquitetura, 2004
  • Arquitetura & Aço 11, Rio de Janeiro, Brasil, Editora Quadrifoglio, 2007
  • Nueva Arquitectura de Interiores, Barcelona, Espanha, Monsa Editora, 2005
  • The New Apartment, Barcelona, Espanha, LinksBooks, 2005
  • AMC 155: Spécial Tertiaire, Paris, França, Groupe Le Moniteur, 2005
  • Arquitetura & Urbanismo 140, São Paulo, Brasil, Editora Pini, 2005
  • Novos Estudos 65, São Paulo, Brasil, CEBRAP, 2003
  • Projeto Design 275, São Paulo, Brasil, Arco Editorial, 2003
  • Deutsche BauZeitschrift (DBZ) 7, Berlim, Alemanha, Bertelsmann Springer, 2002
  • Escala: Arquitectura Latinoamericana 204, Bogotá, Colômbia, Editorial Escala, 2006
  • Viver Bem, São Paulo, Brasil, Editora Peixes, 2008