Edifício Pop Madalena
São Paulo - SP, 2011 - 2015
Programa
Etapas construtivas
Estratégias bioclimáticas
Implantação
Terceiro subsolo
Segundo subsolo
Térreo
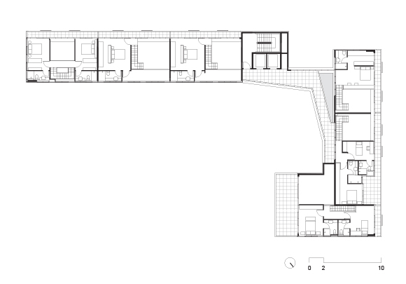
Pavimento tipo (primeiro ao quarto)
Quinto pavimento
Sexto pavimento
Sétimo pavimento
Oitavo pavimento
Corte transversal
Corte transversal
Memorial
O Pop é um edifício de uso misto, situado na Vila Madalena, cuja implantação enfrenta o desafio particular de comunicar duas ruas com diferença de cota de aproximadamente 18 metros. Este considerável desnível faz com que o edifício se destaque de seu entorno imediato, por um lado propiciando boas vistas e grande visibilidade ao conjunto, por outro lado fazendo com que seu volume avance agressivamente sobre a paisagem local.
A implantação proposta visa, a um só tempo, tirar o melhor proveito das vistas e suavizar o impacto do edifício sobre sua vizinhança. Esta suavização se dá por meio da fragmentação de sua volumetria, o que leva o edifício a ser composto por blocos articulados e sobrepostos, sendo que o acesso principal ocorre na cota superior do terreno, ou seja: entre os dois blocos principais. Nesta cota estão dispostos os espaços coletivos, contando com uma praça de entrada, piscina, salão multiuso, bem como uma loja, aberta para a Rua Madalena. Na cota inferior do terreno há uma entrada secundária, associada a um generoso espaço com pé direito duplo, aberto para a Sua Simpatia, destinado ao uso comercial.
O edifício conta com 30 apartamentos, sendo 6 desses com dois andares, todos providos de infraestrutura em prumadas de forma a permitir grande flexibilidade na definição de seus espaços internos.
A estrutura do edifício, realizada em concreto armado, parte de um grid simples e racional, liberando as bordas das lajes em um discreto balanço. Essa matriz pode ser ocupada com grande liberdade, o que se reflete tanto na flexibilidade do uso dos espaços internos quanto na diversidade de composições em sua fachada, marcada por seus painéis coloridos deslizantes. A partir desse grid estrutural o edifício foi realizado como uma montagem seca, com amplo uso de materiais préfabricados e industrializados.
Ficha Técnica
Projeto
Edifício Residencial Pop Madalena
Local
São Paulo – SP
Ano de projeto
2011
Ano de execução
2015
Área do terreno
1.533m2
Área construída
7.682m2
Equipe
Andrade Morettin Arquitetos Associados
Vinicius Andrade, Marcelo Morettin, Renata Andrulis, Marcelo Maia Rosa
Guido Otero (coord.), Beatriz Vanzolini, Fabio Ucella, Flora Fuji e Maíra Fernandes
Equipe Idea!Zarvos
Alex Haiashida
Estrutura
Gama Z Engenharia
Fundações
Apoio Assessoria e Projetos de Fundações
Hidráulica
Criarq Projetos e Gerenciamento
Elétrica
Ramoska & Castellani
Aquecimento
Chaguri Consult
Ar condicionado
Contractors Engenheiros Associados
Luminotécnica
Estúdio Carlos Fortes Luz + Design
Paisagismo
André Paoliello Paisagistas Associados
Programação visual
Nitsche Arquitetos
Construção
R. Yazbek Construtora e Incorporadora
Fotos
Nelson Kon
Publicações
- Projeto Design 429, São Paulo, Brasil, Arco Editorial, 2016