Edifício Box 298

São Paulo - SP, 2009 - 2013

+ INFO
|<     <

Programa

Etapas construtivas

Estratégias bioclimáticas

Implantação

Subsolo

Térreo inferior

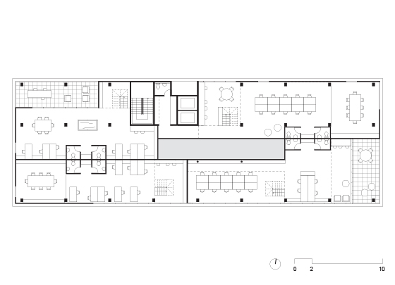
Térreo superior

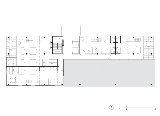
Primeiro pavimento

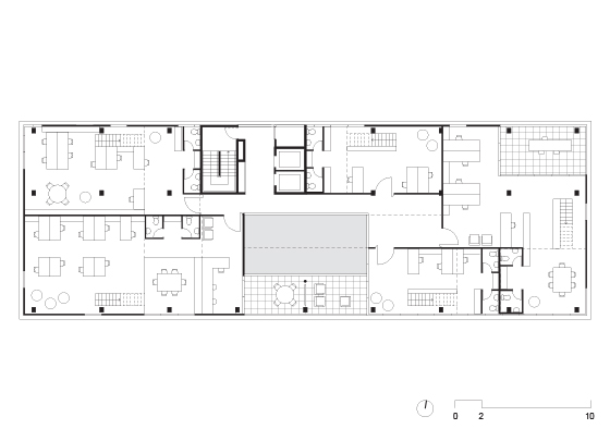
Terceiro pavimento

Quinto pavimento

Sétimo pavimento

Cobertura

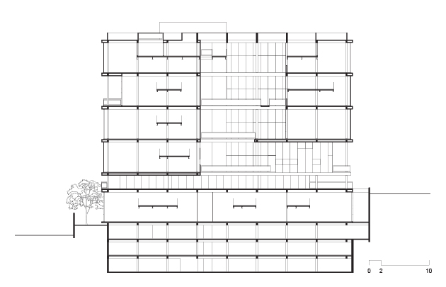
Corte transversal

Corte longitudinal

Memorial

A implantação do edifício no lote explora a possibilidade de conexão entre as ruas Wisard e Fidalga. Esta conexão valoriza a percepção espacial e visual do lugar. Desta forma cria-se um percurso contínuo que se inicia no passeio público e conduz a um generoso hall aberto que conta com pé direito triplo e com as visuais livres. A construção da lamina superior expressa o conceito de um edifício flexível, através da sobreposição de lajes com pé direito duplo e fechamentos leves posicionados de maneira alternada, proporcionando espaços diversificados e também grande liberdade para a ocupação de seus espaços internos.

Ficha Técnica

Projeto
Edifício de Escritórios Box 298
Local
São Paulo – SP
Ano do projeto
2009
Ano de execução
2013
Área do terreno
1.294m2
Área construída
5.600m2
Equipe
Vinicius Andrade, Marcelo Morettin, Renata Andrulis, Marcelo Maia Rosa
Beatriz Vanzolini (coord.), Marcio Tanaka e Marina Rosenfeld Sznelwar
Equipe Idea!Zarvos
Luciano Gouveia
Estrutura
Gama Z Engenharia
Fundações
Apoio Assessoria e Projetos de Fundações
Instalações
Soeng – Elétrica e Hidráulica
Luminotécnica
Reka Iluminação
Ar condicionado
Aero Mecânica Ar Condicionado
Programação visual
João Nitsche e Tomaz Farias
Consultoria para caixilhos
Arqmate Consultoria e Projetos de Esquadrias
Construção
Marxsen Engenharia e Construções
Fotos
Nelson Kon

Publicações

  • Arquitetura & Urbanismo 240, São Paulo, Brasil, Editora Pini, 2014
  • Monolito 18 | Anuário 2013, São Paulo, Brasil, Editora Monolito, 2014
  • Projeto Design 360, São Paulo, Brasil, Arco Editorial, 2010
  • Monolito 2 | Andrade Morettin Arquitetos, São Paulo, Brasil, Editora Monolito, 2011