E.E. Jornalista Roberto Marinho

Campinas - São Paulo, 2003 - 2004

Projeto Premiado

+ INFO
|<     <

Montagem

Implantação

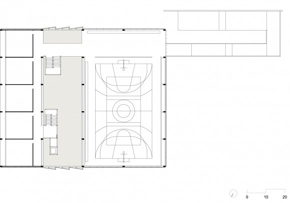
Térreo

Pavimento Superior

Corte transversal

Corte longitudinal

Memorial

No intuito de testar um novo padrão para as escolas públicas estaduais em São Paulo a Fundação para Desenvolvimento da Educação (FDE), convidou um grupo de arquitetos para desenvolver projetos que se utilizassem de estrutura de concreto préfabricada. Nosso escritório ficou incumbido de implantar uma escola primária com quinze salas de aula em um conjunto residencial de baixa renda situado nos arredores da cidade de Campinas, uma região parcamente urbanizada de paisagem bastante heterogênea.

Uma escola tem grande potencial para agir como elemento integrador da comunidade local. Explorar esta característica foi uma de nossas principais metas. Neste contexto surgiu o desejo de criar um prédio cuja relação com o entorno provocasse ao mesmo tempo estranhamento e atração. Imaginamos então a inserção de um objeto forte e reconhecível na paisagem. O resultado foi a criação de um volume fechado concentrando as atividades introspectivas em sua parte superior e um térreo aberto, concebido como extensão do solo público, de tal sorte que a transição do exterior x interior se desse sem cerimônia ou formalidade.

Uma rua interna promove a integração entre o térreo e os demais pavimentos e justamente no vazio definido por esta rua se situam os equipamentos de circulação vertical, (escadas, elevador e passarelas). Uma generosa rampa externa, como desdobramento do solo, conduz de forma fluida à quadra poliesportiva localizada no primeiro pavimento, marcando na volumetria externa o desejo da livre comunicação dos espaços. A partir de elementos construtivos modulares e autônomos, pilares vigas e lajes de concreto protendido, com modulação de 10.80 x 7.20 m, a escola foi concebida como um grande galpão que abriga em um único espaço integrador as diversas atividades previstas no programa.

A observação de edifícios industriais nos permitiu reconhecer um repertório compatível com o sistema construtivo proposto e que poderia facilmente ser incorporado ao programa de uma escola, apresentando bom desempenho e baixo custo. Para o fechamento do volume optamos por componentes industriais leves e duráveis que pudessem substituir com êxito a tradicional alvenaria de blocos. Utilizando telhas metálicas pré pintadas e venezianas industriais de PVC para o fechamento das fachadas e telhas metálicas termo-acústicas para a cobertura, confirmamos a lógica construtiva que desejávamos propor.

Ficha Técnica

Projeto

Escola Estadual Roberto Marinho

Local

Campinas – SP

Ano do projeto

2003

Ano de conclusão

2004

Área construída

3.660 m2

Equipe

Andrade Morettin Arquitetos

Marina Mermelstein, Renata Azevedo e Thiago Natal Duarte

Equipe FDE

Mirela Geiser de Mello Avany Ferreira

Fotos

Nelson Kon

Premiação

7° Prêmio Jovens Arquitetos – IAB-SP - Menção honrosa, 2003

Publicações

  • 30-60 Cuaderno Latinoamericano de Arquitectura 18, Buenos Aires, Argentina, I+P Editorial, 2008
  • Young Architects Americas, Estados Unidos, Daab, 2007
  • COLETIVO – Arquitetura Paulista contemporânea, São Paulo, Brasil, Cosac Naify, 2006
  • Tracés 15/16, Zurique, Suíça, SEATU, 2005
  • Projeto Design 296, São Paulo, Brasil, Arco Editorial, 2004
  • Projeto Design 284, São Paulo, Brasil, Arco Editorial, 2003
  • Escala: Arquitectura Latinoamericana 204, Bogotá, Colômbia, Editorial Escala, 2006
  • Monolito 2 | Andrade Morettin Arquitetos, São Paulo, Brasil, Editora Monolito, 2011