Residência H.L.

São Paulo - São Paulo, 2018 - 2020

+ INFO
|<     <

Memorial

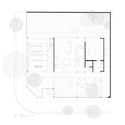
A Residência HL foi concebida como um pequeno pavilhão urbano, ocupando a esquina de um bairro jardim exclusivamente residencial de São Paulo. O partido de implantação obedece a dois critérios complementares: criar um pavilhão independente – leve e suspenso do solo – e integrar espaços internos e externos para tirar o melhor proveito possível da área do lote.

Para tanto, propusemos uma plataforma de fora a fora do terreno, suspensa 60 cm do solo, que acolhe os espaços mais significativos da residência, como áreas de convívio, suíte principal e os espaços de serviço. A posição desta plataforma configura dois pátios ajardinados que se articulam com os espaços internos por meio de varandas cobertas em toda a extensão do pavilhão.

Um volume suspenso, sobre a cobertura da plataforma, abriga o segundo dormitório da residência. Este dormitório funciona como estúdio independente, na medida em que acolhe tanto o espaço de trabalho quanto o de dormir, além de banheiro completo e acesso a um jardim localizado na cobertura da plataforma.

O sistema construtivo adotado reforça o partido proposto, de pavilhão leve e suspenso. A estrutura é metálica, de perfis W com conexões soldadas na fábrica e parafusadas no canteiro; os fechamentos são predominantemente compostos por componentes industrializados, como painéis de alta densidade e caixilhos de alumínio; os sistemas de piso, forro e cobertura adotam os mesmos critérios, privilegiando sistemas leves produzidos na fábrica (fora do canteiro) e montados na obra.

Por fim, adotou-se um sistema de sombreamento e proteção solar composto por painéis de tecido retráteis, que reforçam a leveza e o caráter mutável da volumetria, que pode se transformar de acordo com as condições ambientais – como a posição do sol – e as possibilidades de relação pretendidas entre os espaços internos e externos.

Ficha Técnica

Projeto

Residência H.L.

Local

São Paulo – SP

Ano de projeto

2018

Ano de construção

2020

Área construída

205 m2

Autores

Andrade Morettin Arquitetos Associados

Vinicius Andrade, Marcelo Morettin, Marcelo Maia Rosa, Renata Andrulis

Equipe

Fernanda Mangini, Murilo Zidan, Daniel Zahoul, Guilherme Torres, Izabel Sigaud, Ana Paula Silveira, Arthur Frensch, Maria Carolina Bomeny

Estagiários

Julia Daher, Simone Shimada, Danielle Gregorio, Ingrid Colares, Victoria de Almeida Leite, Arthur L. Falleiros, Arthur Klain, André Enrico, Amanda Cunha, Gabriel Garcia Aguiar

Construtora

Marcondes Ferraz Engenharia

Estrutura

Maratá Engenharia

Instalações

Maratá Engenharia

Paisagismo

Yapó | Orsini Paisagismo

Sondagem

MR Sondagem e Estacas

Fotos

Nelson Kon