Residência A.B.
São Paulo - SP, 2006 - 2008
Modelo físico
Implantação
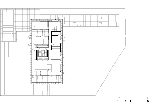
Térreo
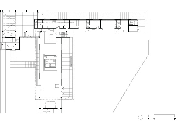
Primeiro pavimento
Corte longitudinal
Corte transversal
Elevação norte
Memorial
Esta casa, localizada num bairro-jardim da cidade de São Paulo, tira proveito de sua condição privilegiada e faz da integração com a natureza seu traço distintivo. Todos os seus espaços mantêm uma relação clara com o parque de mais de 1.500,00 m2 no qual estão inseridos.
No térreo, os espaços de convívio estão localizados sob a sombra do volume superior da casa, conectados aos jardins através de uma grande varanda e das portas de correr de vidro – que podem ser recolhidas totalmente, criando uma abertura de 14m de largura. O volume superior, concebido como uma caixa translúcida, abriga os quartos e outros ambientes que requerem maior privacidade.
A estrutura do volume de vidro foi concebida de tal maneira que ele parece flutuar sobre o jardim, sustentado pelo pilar central de concreto armado, que abriga também a escada de acesso ao pavimento superior. A articulação entre os planos horizontais e este pilar de sustentação é reforçada pela criação de vazios ao redor de toda a caixa de concreto, que são utilizados também para trazer luz natural da cobertura para o interior da casa.
Todo o volume superior é fechado por uma pele de vidro serigrafado, que funciona como filtro de luz e quebra-sol. A estampa que compõe a serigrafia funciona como uma reverberação da imagem do parque na superfície da casa, reforçando a interdependência entre o objeto arquitetônico e a natureza.
Ficha Técnica
Projeto
Residência A.B.
Local
São Paulo – SP
Ano de projeto
2006
Ano de conclusão
2009
Área do terreno
2140m2
Área construída
1364m2
Equipe
Andrade Morettin Arquitetos
Vinicius Andrade, Marcelo Morettin
José Paulo Gouvêa, Marcio Tanaka, Marina Mermelstein, Merten Nefs e Thiago Natal Duarte
Fotos
Cristiano Mascaro
Leonardo Finotti
Nelson Kon
Publicações
- Bamboo 25, São Paulo, Brasil, Editora Turquesa, 2013
- GA Houses 123, Tóquio, Japão, A.D.A. Edita, 2011
- Projeto Design 363, São Paulo, Brasil, Arco Editorial, 2010
- GA Houses 103, Tóquio, Japão, A.D.A. Edita Publishing, 2008
- Monolito 2 | Andrade Morettin Arquitetos, São Paulo, Brasil, Editora Monolito, 2011