Concurso Nacional para sede da CAPES – Brasília

Brasília - DF, 2007

Projeto Premiado

+ INFO
|<     <

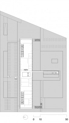
Implantação

Subsolo

Subsolo

Térreo

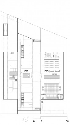
Primeiro pavimento

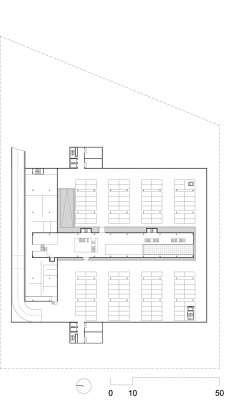
Segundo pavimento

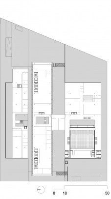
Terceiro pavimento

Corte transversal

Corte longitudinal

Distribuição do programa | 1.Suporte e logística 2.Presidência e corpo diretivo 3.Consultorias e restaurante 4.Estacionamento

Memorial

O projeto se organiza a partir de uma rua interna, que conecta um lado ao outro do terreno. Esta rua interna é também a praça que determina a implantação do conjunto. Ligeiramente rebaixada em relação ao entorno, a praça constitui a um só tempo a ligação com Brasília e a criação de um lugar privilegiado para o novo edifício. A distribuição do programa está diretamente legada com a implantação dos edifícios no terreno. As funções coletivas e as atividades que por vezes recebem colaboradores ou público externo – além das atividades de suporte – foram distribuídas na base do conjunto, conformando a praça interna. As funções principais e o corpo diretivo estão concentrados na lâmina de escritórios. Nos subsolos, os estacionamentos. Para conectar todos os setores, criou-se uma estrutura transversal com múltiplas possibilidades de ligação: escadas, passarelas e elevadores promovem a comunicação entre os diversos espaços. Uma plataforma localizada logo abaixo da praça amarra todos os edifícios e serve de base para o sistema. A infra-estrutura foi planejada com bastante critério, tanto do ponto de vista do uso quanto com relação à gestão dos recursos energéticos. Por se tratar de uma instituição ligada à ciência e à pesquisa, é importante que o edifício esteja alinhado com os esforços mundiais de desenvolvimento sustentado.

Ficha Técnica

Projeto

Concurso Nacional de anteprojeto para a sede da CAPES

Local

Brasília – DF

Ano de projeto

2007

Equipe

Andrade Morettin Arquitetos

Marcio Tanaka, Marina Mermelstein, Merten Nefs e Thiago Natal

Premiação

Concurso Nacional para Sede do CAPES – Brasília - 1º Prêmio, 2007

Publicações

  • Projeto Design 336, São Paulo, Brasil, Arco Editorial, 2008