Edifício Pop+
São Paulo - SP, 2013 - 2018
Projeto Premiado
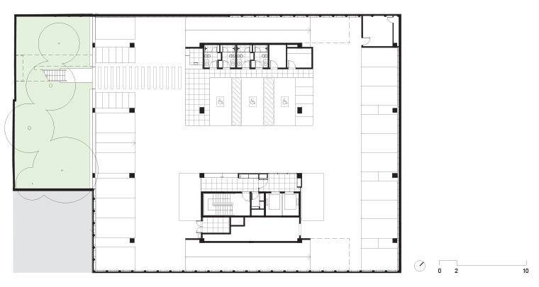
Implantação
Subsolo
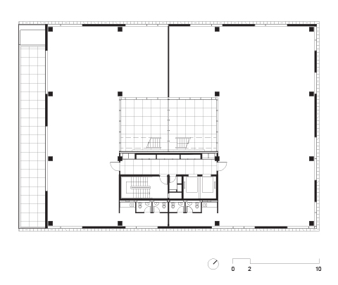
Térreo
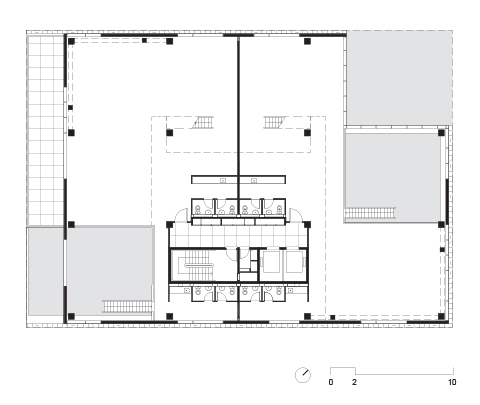
Primeiro pavimento
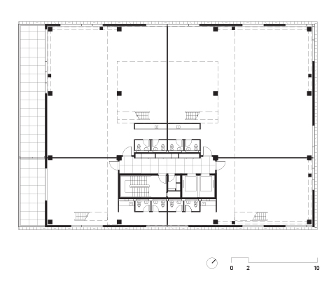
Segundo pavimento
Terceiro e quarto pavimento
Quinto pavimento
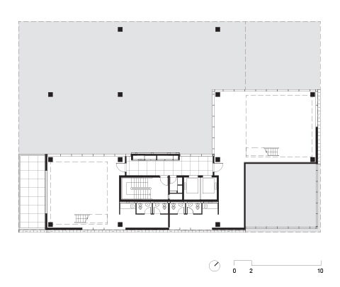
Cobertura
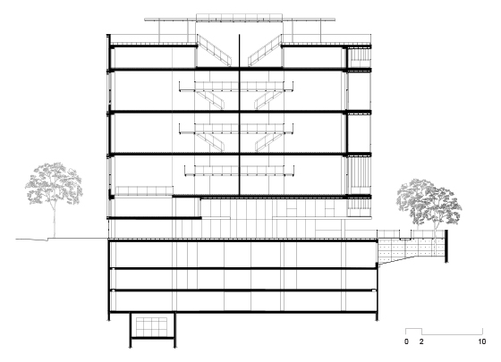
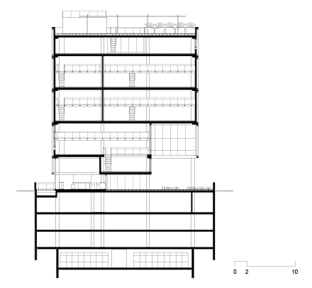
Corte transversal
Corte longitudinal
Memorial
O Pop+ desfruta de uma condição privilegiada dentro da Vila Madalena. Sua localização, em uma das cotas mais elevadas do bairro, permite que os seus conjuntos desfrutem de vistas privilegiadas do entorno. Adicionalmente, o terreno conta com um parque arbóreo muito bonito nos fundos do lote, que será reforçado pelo projeto de paisagismo.
A implantação parte da criação de uma praça de entrada sob o edifício, que está totalmente conectada tanto com a rua quanto com o parque nos fundos do terreno. Com pés-direitos variáveis, a praça serve não só de área de convívio para os usuários do prédio como faz a conexão visual do parque com o espaço público da rua.
Para reforçar a importância desta praça e para tornar seu espaço mais interessante, a estrutura foi resolvida de tal forma que não há pilares nos cantos do edifício, criando balanços surpreendentes e proporcionando uma volumetria bastante expressiva para o conjunto. Junto à Rua Girassol, esses balanços estabelecem um vazio que está desenhado de forma a rememorar o perfil típico da paisagem da Vila. Com um jogo de cheios e vazios, a volumetria do edifício busca estabelecer uma relação entre o novo edifício e as construções tradicionais do bairro: é como se, sob o volume principal do edifício restasse, como um vestígio, o vazio deixado pelas casinhas que um dia existiram ali.
O uso de quebra-sóis laminares, em chapa perfurada, ao redor do volume, cria um envelope protetor que dá unidade e caráter ao edifício. As varandas, com 3 metros de profundidade, estão localizadas na fachada que se abre para o parque, o que permite a criação de espaços de convívio, ou mesmo de trabalho, junto às copas das árvores.
Ficha Técnica
Projeto
Edifício Pop+
Local
São Paulo – SP
Ano de projeto
2013
Ano de conclusão
2018
Área do terreno
1.488m2
Área construída
8.774m2
Equipe
Vinicius Andrade, Marcelo Morettin, Renata Andrulis, Marcelo Maia Rosa
Fernanda Carlovich, Fernanda Mangini, Raphael Souza, Jaqueline Lessa, Melissa Kawahara, Adriane De Luca, Felipe Fuchs
Equipe
Idea!Zarvos
Laura Mecchi, Sérgio Meister
Estrutura
Ávila Engenharia de Estruturas
Estrutura metálica
Beltec Engenharia
Fundações
Apoio Assessoria e Projetos de Fundações
Instalações
Projetar Instalações Comerciais
Impermeabilização
Proassp Project Management and Consulting
Consultoria para caixilhos
Crescêncio Petrucci Consultoria e Engenharia
Luminotécnica
Reka Iluminação
Paisagismo
Raul Pereira Arquitetos Associados
Programação Visual
Nitsche Arquitetos
Construção
Sinco Engenharia
Fotos
Nelson Kon